Best in Glass

Translucent glass panels and polished back-painted glass tile played key roles in the strategy behind making this small primary bath feel like a larger one.  The semi-recessed shower with a clear glass front corner transitions seamlessly towards the back of the bath without visually narrowing the space.  The walls, covered with various sizes and shapes of turquoise glass tile, create patterns and textures with white grout lines and add soft reflections throughout the room.  

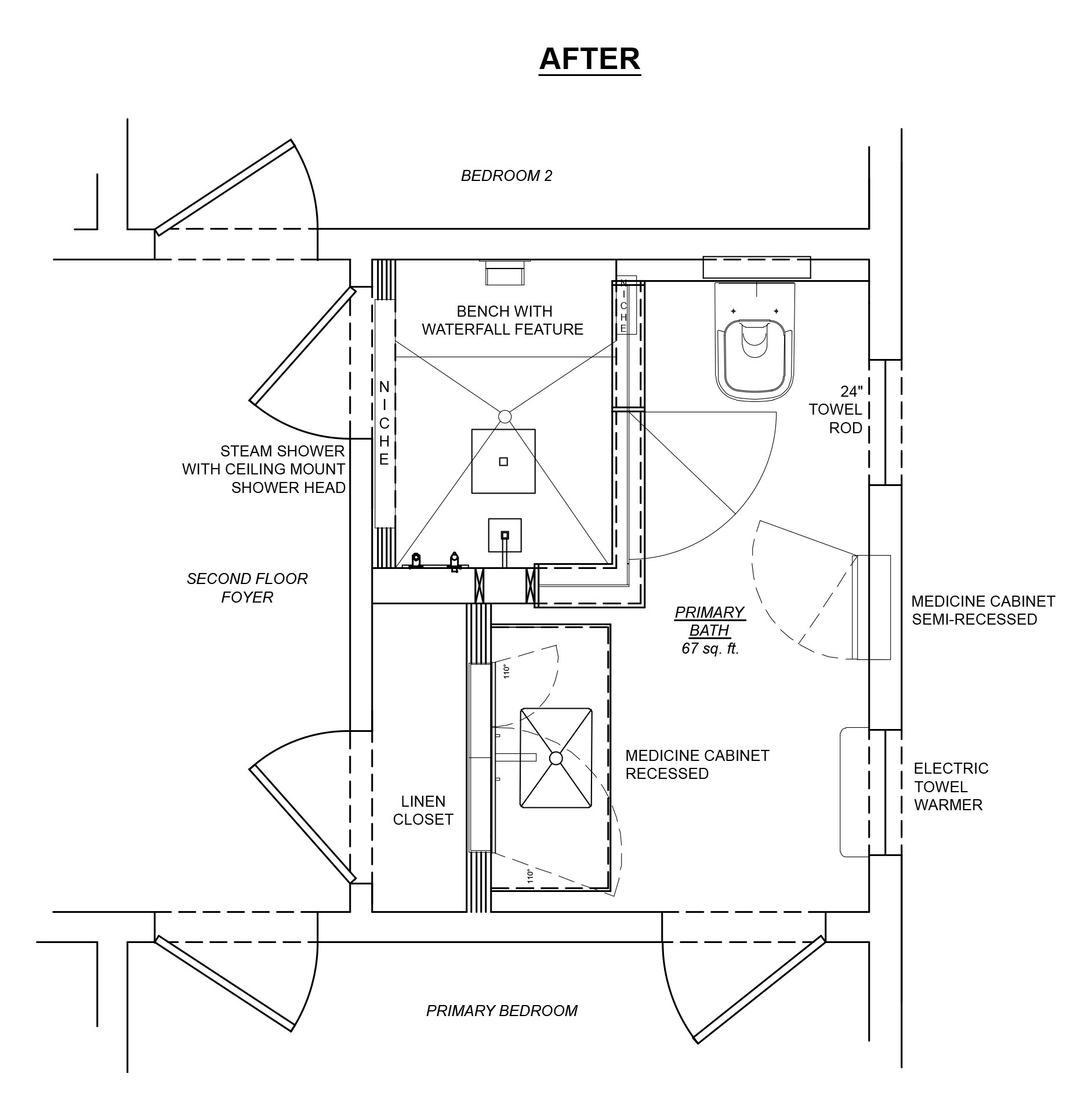
Alterations to the home’s foyer closet configuration improved the proportions of the layout for a larger steam shower with waterfall feature and generously sized vanity and medicine cabinet, all with just an increase of eight square feet.

Photography by Blackstock Photography

Houzz's "Bathroom of the Week" November 7, 2023

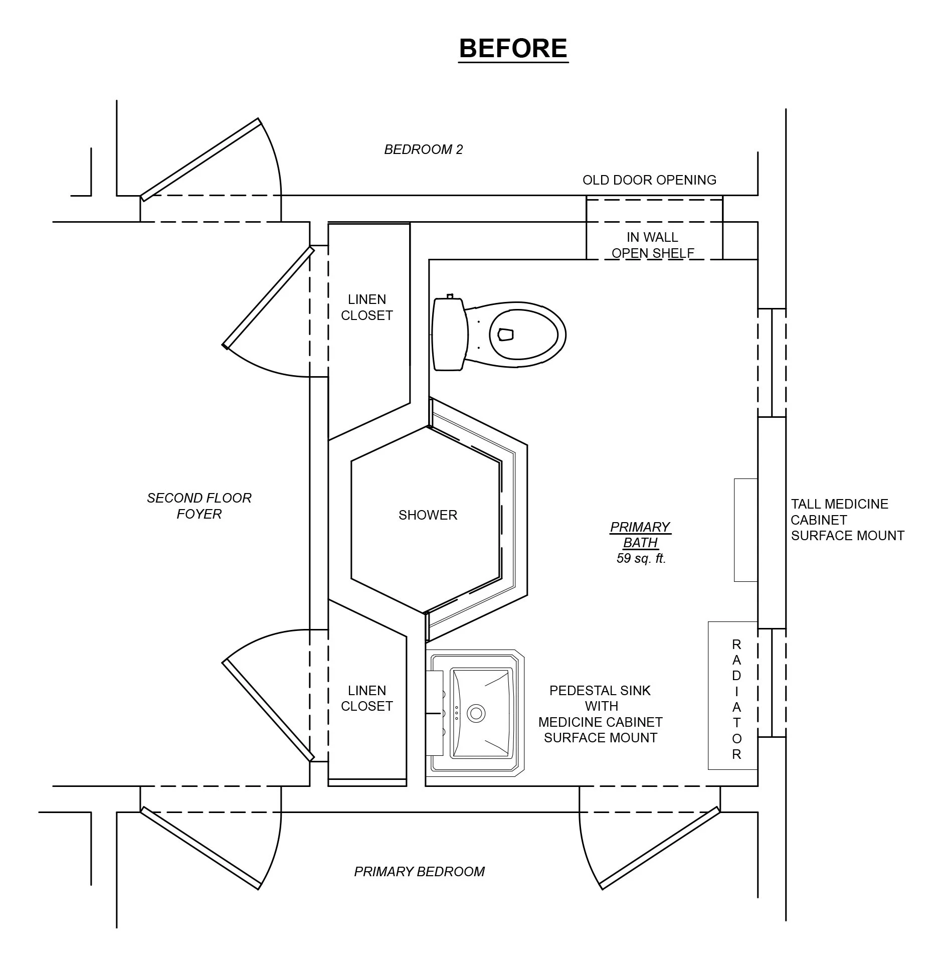
Where we started …


Floorplan Before

Floorplan After


Previous
Previous

Finding Your Niche

Next
Next

French Twist