Finding Your Niche

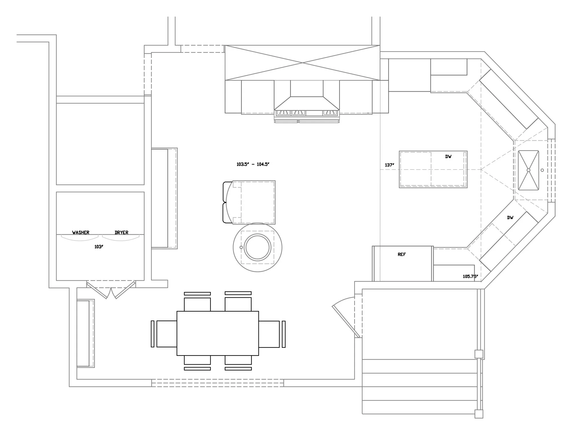
This gracious 1904 Colonial Revival home was mainly intact with beautiful original details and features throughout the home, except for the kitchen. The 1990s kitchen renovation did not compliment the home's period or style and was a dysfunctional combined space of the original kitchen with two old porches.

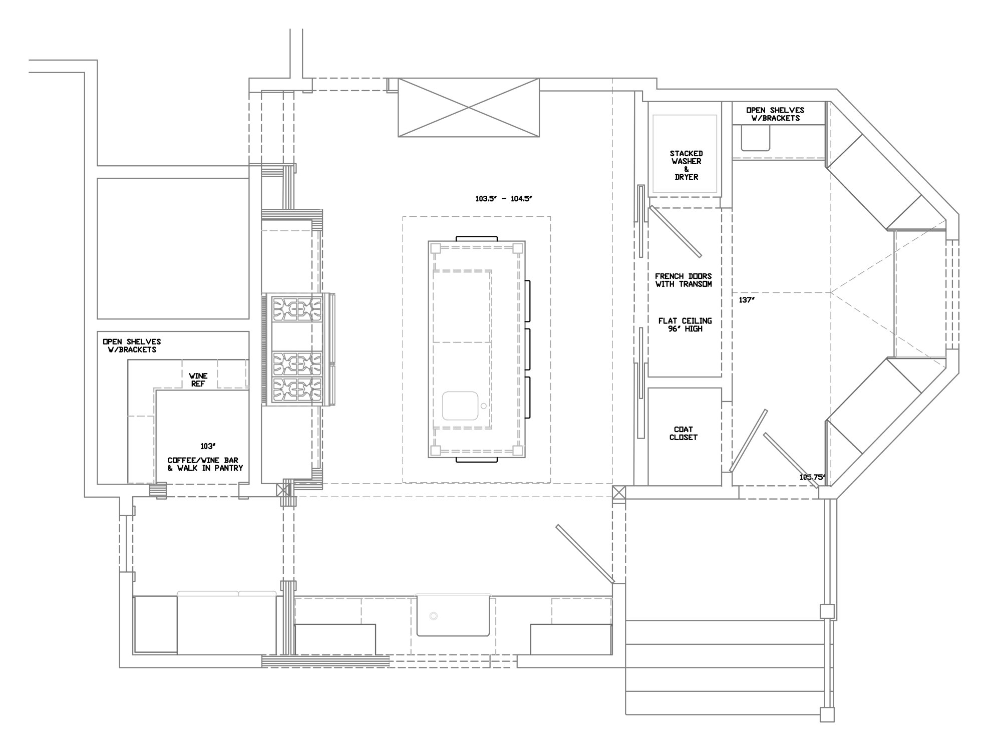
I love turning challenges into opportunities. Breaking up this sprawling space into distinct areas fulfilled the clients' need for a better functioning kitchen and laundry while also creating space for a new mudroom for their growing family. Obstacles and angles became focal points, as seen with the new range niche that hid a structural post and mudroom that concealed the stacked laundry equipment.

Photography by Whitney Kidder

Featured in Design New Jersey Magazine's "Kitchen Issue" 2019

Client Review

Where we started …

Before Photos Courtesy of Diane Terry | Keller Williams Realty

Floorplan Before

Floorplan After


Previous
Previous

History Takes the Lead

Next
Next

Best in Glass